River Meadows Lot 3 New Home Floor Plan

River Meadows Lot 3

Single Family

  • 1,881
  • 3
  • 2.5

About this home plan

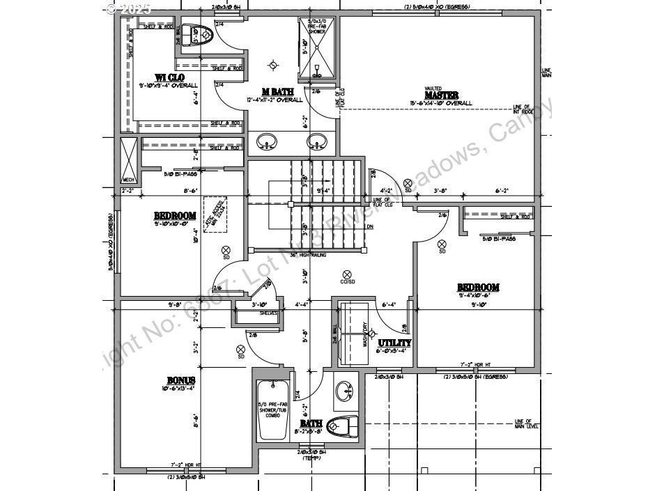
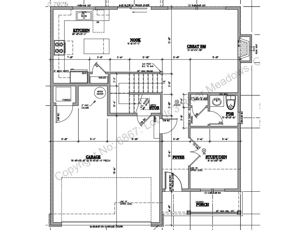
3 bed, 2.1 ba + den + bonus. 1883 sqft

Elevations

Floorplans

Click to enlarge and zoom.

Questions?

Contact us about River Meadows Lot 3.

Build In These Communities

1,881sf New Home

Available Homes

River Meadows Lot 3 Home with 3 Bedrooms